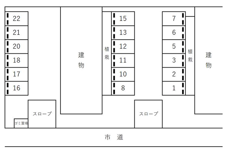
80052パークヒル押沢台A

80052_80052パークヒル押沢台A.jpg
地図を読み込み中...
〒487-0005 愛知県春日井市押沢台1丁目7-7

特徴・サイズ

貸出時間は15:00〜翌15:00です。時間外は駐車できませんのでご注意ください。
  • 種別

    平置き

  • 屋根

    なし

  • 舗装

    あり

貸出時間

15:00〜翌15:00

サイズ制限

  • 高さ

    不明

  • 長さ

    不明

  • 車幅

    不明

対応車種タイプ

  • 軽自動車

    軽自動車

  • コンパクトカー

    コンパクトカー

  • 中型車

    中型車

  • ワンボックス

    ワンボックス

  • 大型車・SUV

    大型車・SUV

  • トラック・大型重量車両

    トラック・大型重量車両

  • バイク

    バイク

※画像はイメージです。該当車種の入庫を保証するものではありません。

予約可能日

予約可能日(金額が表示されている日付)から、ご希望の利用日を選択してください。
本日から2週間先まで、連日・複数日のご予約も可能です。
※表示価格は1日の利用料金(税込)です。
2025 - 2026年

12月
 
 
1月
 
 
 
 
 
 
 
 
 
 
 
 
 
 
 
 
 

400
400/日